3½ Zimmer Wohnung à 95.2m² - Vorreserviert
Tauchen Sie ein in die Welt des exklusiven Wohnens mit unseren einladenden 3½-Zimmer-Wohnungen!
Diese Wohnungen wurden mit höchster Sorgfalt geplant und bieten Ihnen den perfekten Rückzugsort – stilvoll, komfortabel und durchdacht bis ins Detail.
Barrierefreiheit ist für uns selbstverständlich: Dank eines geräumigen Personenlifts sind alle Bereiche bequem erreichbar. Für den Innenausbau setzen wir ausschliesslich auf hochwertige Materialien. Auch die Fassade überzeugt – als verputzte, hinterlüftete Konstruktion mit 20 cm Mineralwolle sorgt sie für ein behagliches Wohnklima und beste Energieeffizienz.
Ein besonderes Highlight ist die grosszügige Begegnungszone im Attikageschoss. Auf 52 m² geniessen Sie eine herrliche Aussicht in die Linthebene und auf die Glarneralpen – der ideale Ort für entspannte Momente oder Begegnungen mit Nachbarn.
Das Badezimmer besticht durch eine komfortable, begehbare Dusche mit Sitzbank – ideal für jedes Lebensalter. Ein separater Heizkreis sorgt zudem dafür, dass der Fussboden auch im Sommer angenehm temperiert bleibt. Selbstverständlich verfügen alle Wohnungen über eine eigene Waschmaschine und einen Tumbler – für maximale Unabhängigkeit und Komfort.
Für Ihr Fahrzeug stehen ausreichend Parkplätze zum Kauf zur Verfügung, sodass Sie jederzeit bequem parken können.
Ob als Mietwohnung oder Eigentum – diese Wohnungen sind die perfekte Wahl für alle, die ein stilvolles, modernes und barrierefreies Zuhause suchen. Kontaktieren Sie uns für weitere Informationen zu den Miet- und Kaufpreisen und geniessen Sie schon bald Ihr neues Zuhause in dieser exklusiven Wohnanlage!
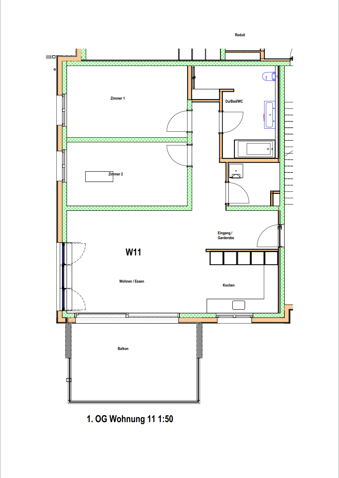
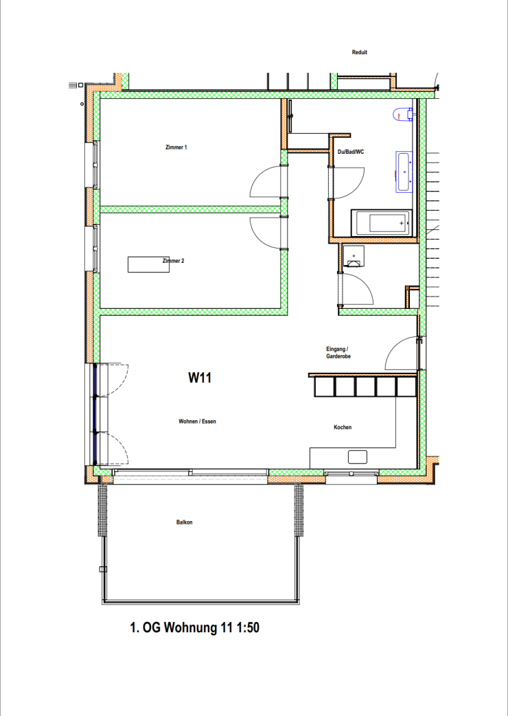
Wohnfläche der 3½ Zimmer Wohnungen
Nettowohnfläche 95.2 m² & Balkon 18.6 m²
Aufgeteilt in:
| Wohnen | 27.2 m² |
| Küche | 8.3 m² |
| Zimmer 1 | 16.7 m² |
| Zimmer 2 | 14.8 m² |
| Dusch-Bad-WC | 11.3 m² |
| Gang - Garderobe | 12.3 m² |
| Reduit | 3.9 m² |
| Nettowohnfläche | 95.2 m² |
| + Balkon | 18.6 m² |
Ihr stilvoller Wohntraum mit Zukunftswert
Entdecken Sie Ihren perfekten Wohntraum in unseren exklusiven 3½-Zimmer-Wohnungen! Diese einladenden Wohnungen befinden sich im Erdgeschoss oder im 1. und 2. Obergeschoss und bieten Ihnen ein unvergleichliches Wohnerlebnis. Mit dieser Wohnung erhalten Sie nicht nur ein stilvolles Zuhause, sondern auch eine Investition in Ihre Zukunft. Erfüllen Sie sich Ihren Wohntraum und sichern Sie sich Ihre eigene Oase der Gemütlichkeit!
Ihr neues Zuhause wartet bereits auf Sie.
Haben Sie Fragen oder wünschen Sie weitere Unterlagen? Nehmen Sie einfach Kontakt mit uns auf – wir beraten Sie persönlich, schnell und unkompliziert per Formular, E-Mail oder telefonisch unter +41 79 816 65 34.
Bei Interesse am Wohnungskauf steht Ihnen zudem unser Partner NewProp kompetent zur Seite. Das erfahrene Team begleitet Sie individuell und unverbindlich von der ersten Anfrage bis zum Vertragsabschluss.
3½ Zimmer Wohnung à 95.2m²
Aussicht Ihrer neuen Wohnung



